Learn more about #God’s Project
Ending Homelessness
John 1334 Ministries, DBA Eden Village of Arizona, is a 501(c)(3) faith-based organization in Mesa, Arizona. For over ten years, we have been developing relationships with and serving the homeless of the Phoenix East Valley. John 1334 Ministries has purchased 1.57 acres in Mesa to build Eden Village: a community of 21 tiny homes that will house chronically homeless individuals.
The first Eden Village was established in 2018 in Springfield, Missouri, and has since been replicated across the United States due to its success. Utilizing the Eden Village plan, we will decrease wasted time, funds, and resources by implementing a proven method. Personal testimonies, statistics, and undeniable data have proven the Eden Village model to be successful in fighting homelessness in the United States; now, it is time for the community to join together to implement this life-changing project here in Phoenix. We hope that you will join us in our mission to build a community for our homeless neighbors and make Phoenix a city where no one sleeps outside.
Together we took people off the city’s streets and gave them a home.
We’ve Addressed the problem
In working with Arizona’s homeless population every day we know that having a safe place to sleep will make all of the difference. Overnight shelters are appreciated, but we can do better. The La Mesa Ministries Board of Directors approved a licensing agreement with The Gathering Tree out of Springfield Missouri to build an Eden Village in the east valley of Phoenix, Arizona. Eden Village is a tiny home community where the chronically homeless live in a permanent supportive housing environment where relationships and community is the main ingredient.


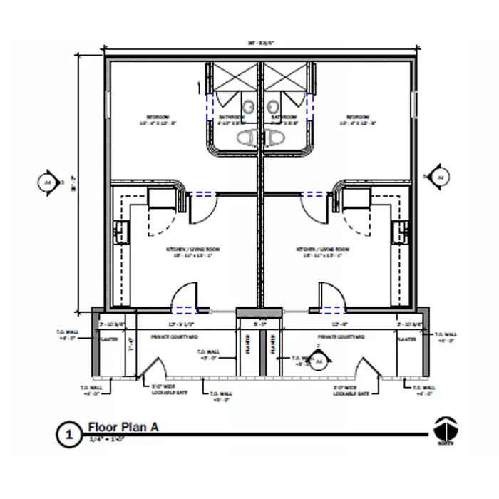
SPECS: 476 sq. ft. | Living: 28’x17’ | Porch: 6’x17’
1 bed | 1 bath